吉祥寺駅徒歩3分 中道通りにシェアオフィス出来ました。
Creator’s space KN-lab
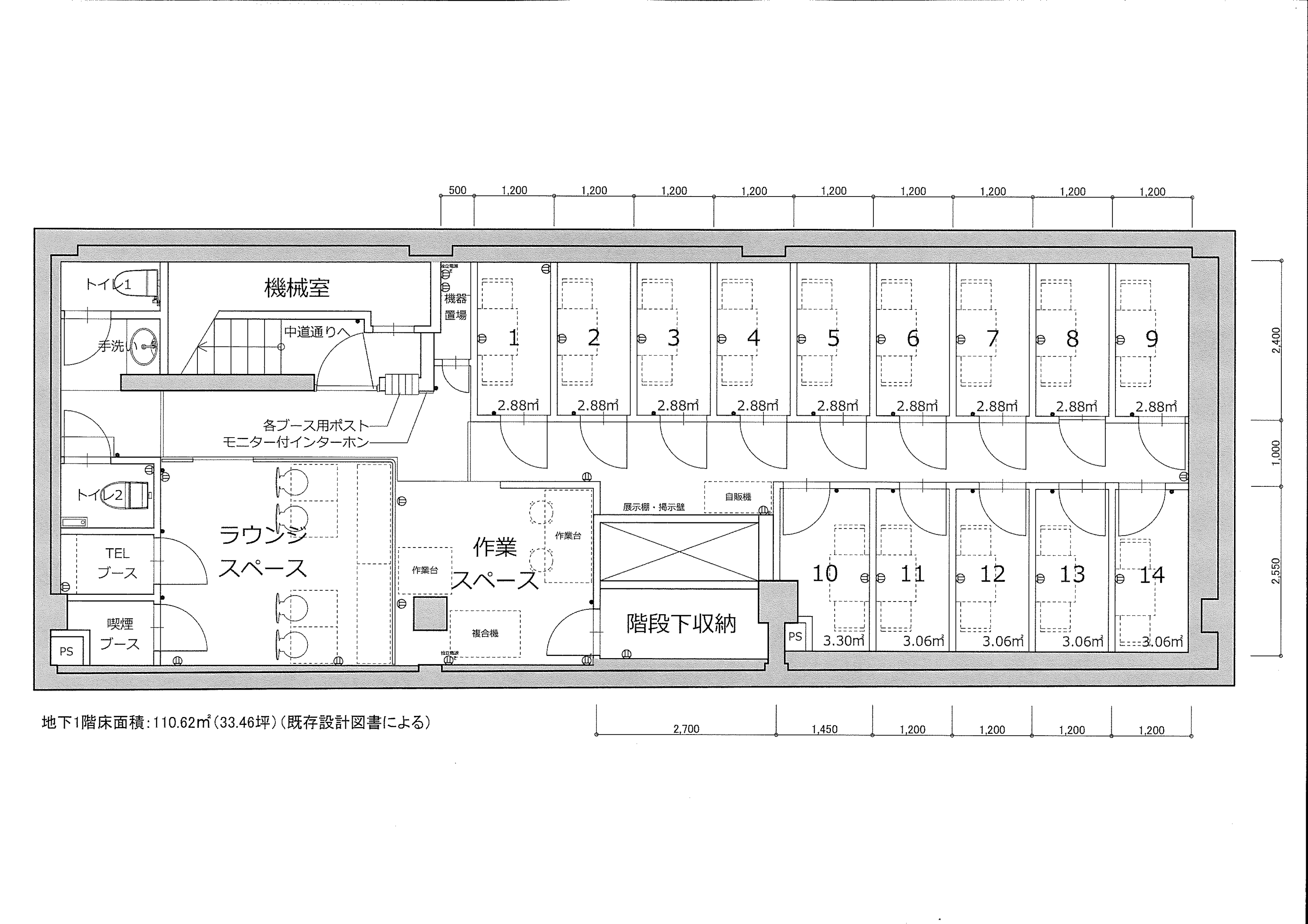
~気軽に打合せ出来るラウンジ・プレゼン資料に便利な作業スペース~*クリエーターが多い吉祥寺にシェアオフィス作りました!
*駅にも近く便利な中道通り
*DIYできます!
*打ち合わせのできるラウンジスペース使えます
*複合機(有償)・作業スペースがあります
*防犯カメラ
*自動販売機
*電話室
*喫煙室
※ミーティングスペース・作業スペースには、テーブル・椅子・作業台が入ります。

物件概要
| 名称 | creator’s space KN-lab(クリエイターズスペース KN-ラボ) |
|---|---|
| 所在地 | 武蔵野市吉祥寺本町2-12-2 仲田ビルB1 |
| 構造 | 鉄筋コンクリート造 地下1階地上4階建 |
賃貸条件
| 室料 | 月額25,000円~28,500円(消費税別) |
|---|---|
| 入会金 | 20,000円(消費税別) |
| 共益費 | 月額8,000円(消費税別) |
| 会費 | 月額5,000円(消費税別) |
| その他 | 利用時間 9:00~21:00 入居審査有 |
- 周辺環境
-
JR中央線・京王井の頭線「吉祥寺駅」 徒歩3分
no images were found
賃料表
*消費税別途加算 *複数人使用の場合は会費は人数分| ブース | ㎡ | 月額賃料 | 月額共益費 | 月額会費 | 月額合計 |
|---|---|---|---|---|---|
| 1(契約済み) | 2.88 | 25,000円 | 8,000円 | 5,000円 | 38,000円 |
| 2(契約済み) | 2.88 | 25,000円 | 8,000円 | 5,000円 | 38,000円 |
| 3(契約済み) | 2.88 | 25,000円 | 8,000円 | 5,000円 | 38,000円 |
| 4(契約済み) | 2.88 | 25,000円 | 8,000円 | 5,000円 | 38,000円 |
| 5(契約済み) | 2.88 | 25,000円 | 8,000円 | 5,000円 | 38,000円 |
| 6 | 2.88 | 25,000円 | 8,000円 | 5,000円 | 38,000円 |
| 7 | 2.88 | 25,000円 | 8,000円 | 5,000円 | 38,000円 |
| 8 | 2.88 | 25,000円 | 8,000円 | 5,000円 | 38,000円 |
| 9(契約済み) | 2.88 | 25,000円 | 8,000円 | 5,000円 | 38,000円 |
| 10(契約済み) | 3.30 | 28,500円 | 8,000円 | 5,000円 | 41,500円 |
| 11(契約済み) | 3.06 | 26,500円 | 8,000円 | 5,000円 | 39,500円 |
| 12 | 3.06 | 26,500円 | 8,000円 | 5,000円 | 39,500円 |
| 13(契約済み) | 3.06 | 26,500円 | 8,000円 | 5,000円 | 39,500円 |
| 14(契約済み) | 3.06 | 26,500円 | 8,000円 | 5,000円 | 39,500円 |
